Pusk Farmhouse, Toll Road, Balmullo

To Let
Per month £3,750 PCM

5 3 3
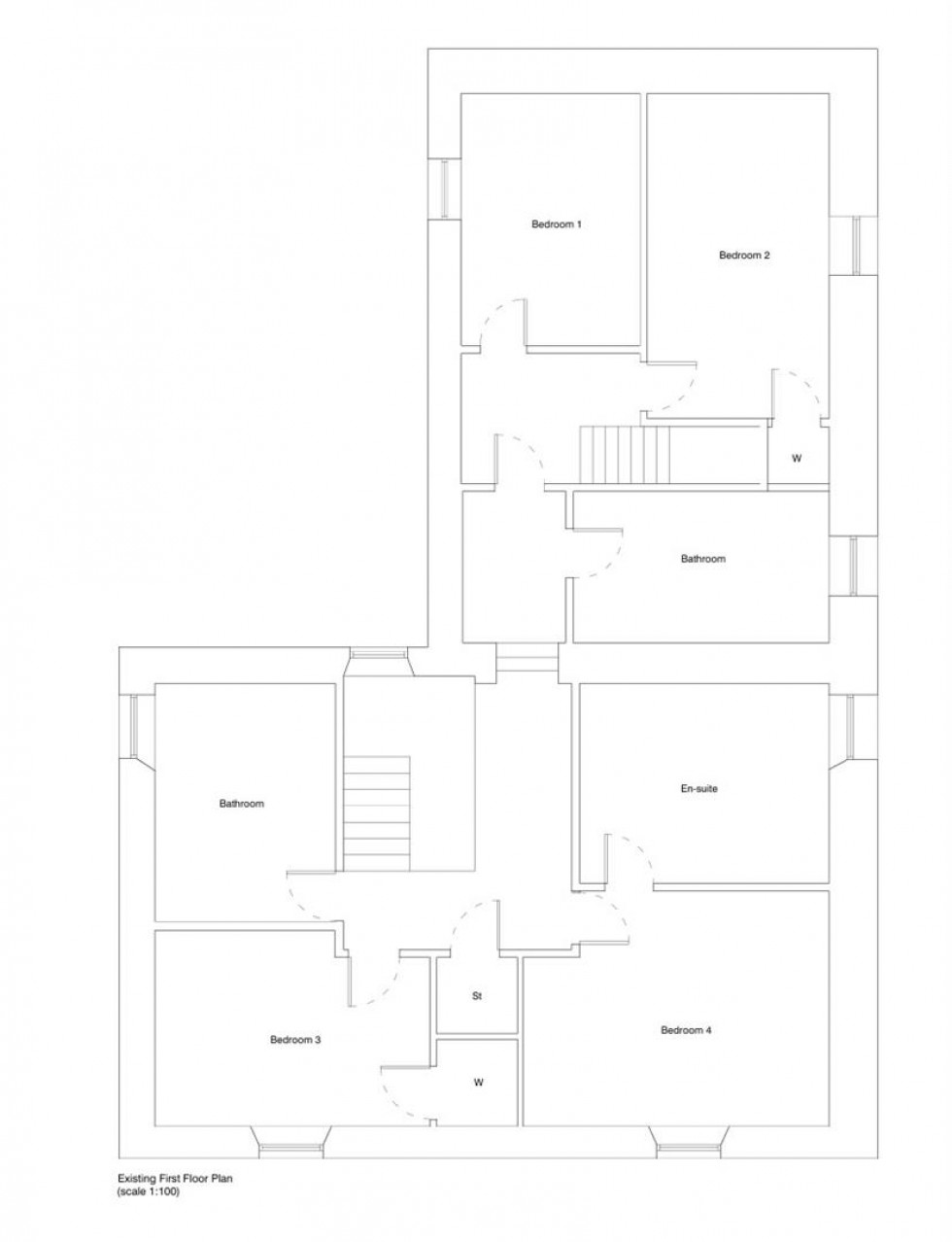
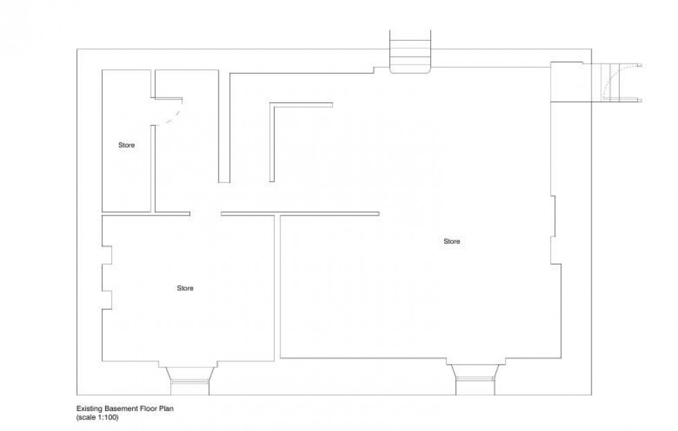
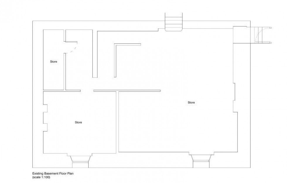
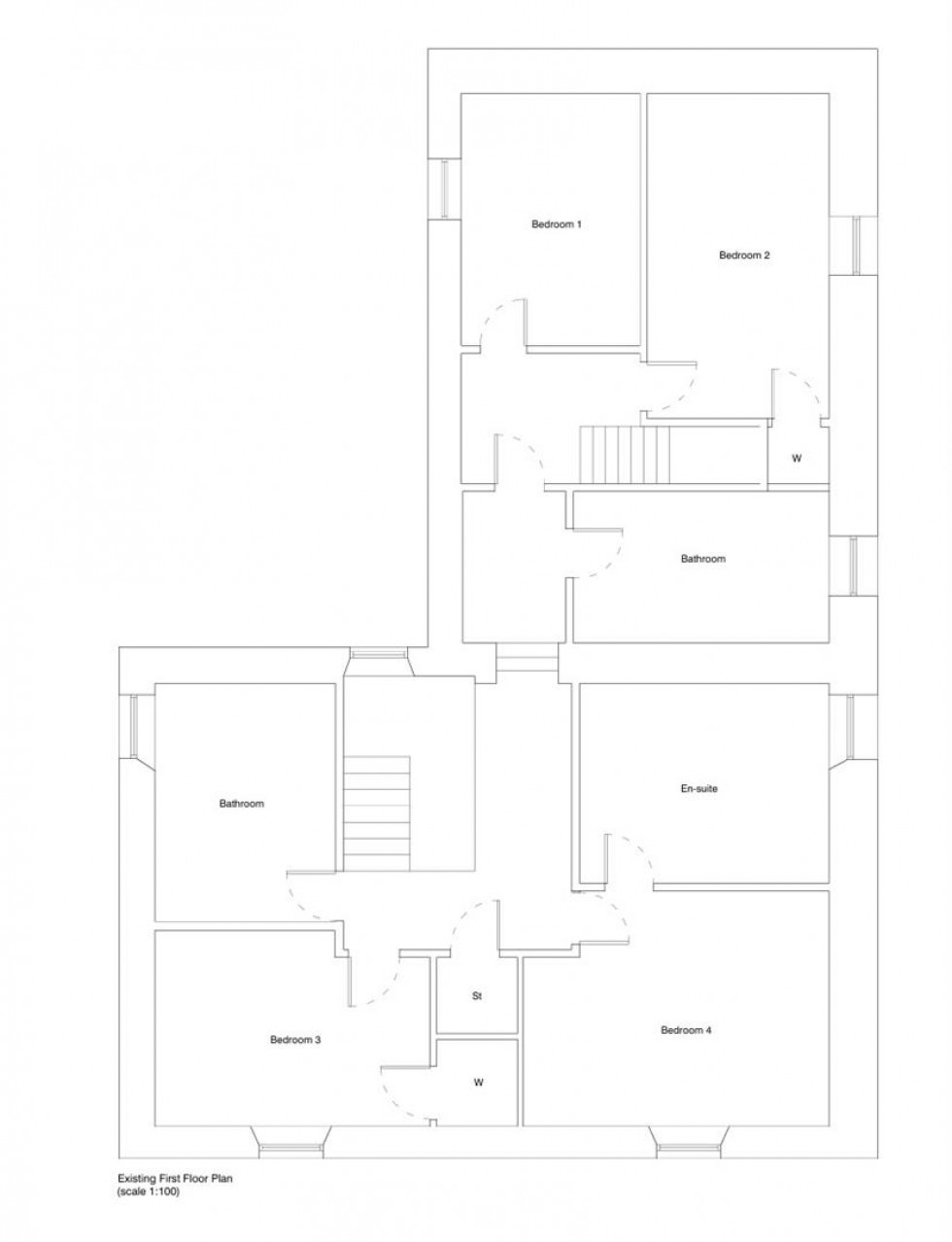
Having recently undergone an extensive refurbishment programme, Pusk Farmhouse, comes to the rentals market in pristine condition and retains all it's original features. The property, which is on the edge of a working farm, is a 5-minute drive to Leuchars railway station with the vibrant university town of St Andrews a mere 10 minute drive or easy cycle. The house faces south and sits in an elevated position enjoying stunning panoramic views. The property over 2 levels comprises: Hall, drawing room with working fireplace, sitting room with an open fireplace, downstairs cloakroom, playroom/study/bedroom 5. Main double bedroom with ensuite bathroom with a separate walk-in shower cubicle, 3 further double bedrooms, 2 family bathrooms both with baths. Eat in kitchen with an Everhot, utility room and boot room. Good storage throughout. Gas fired central heating. 2 well behaved dogs considered, sorry no cats. Large walled garden. Grazing for 2 horses could be available by separation negotiation. Long Let Available, subject to the outcome of satisfactory references. EPC E. LL Reg No: 99042/250/08420. This property does not have an HMO Licence.

Floorplan for Pusk Farmhouse, Toll Road, Balmullo Floorplan for Pusk Farmhouse, Toll Road, Balmullo Floorplan for Pusk Farmhouse, Toll Road, Balmullo
EPC Graph for Pusk Farmhouse, Toll Road, Balmullo

Request a valuation

Find out how much your property is worth